- 価格改定 15,990 万円
- 2LDK +W+SIC | 66.45㎡ | 参宮橋駅 | 可
プラネスーペリア代々木参宮橋の物件レポート
立地・アクセス
小田急線『参宮橋』駅徒歩4分!渋谷区代々木4丁目の閑静な住宅街に立地しております!京王新線『初台』駅も徒歩9分で利用できるので、目的地によって使い分ける好立地ですね!近くにはコンビニやスーパーも揃っていますので、普段のお買物にも便利です!
物件について
プラネスーペリア代々木参宮橋は、2010年築(平成22年)の新耐震基準適合マンションです!地上4階建て総戸数28邸の低層マンションですが、エレベーター完備しています!エントランスにはオートロック&宅配ボックス付きです!ペット飼育も可能です!代々木公園も徒歩圏内なので、休日はワンちゃんと一緒にたくさん遊べそうですね!管理状態も良く、直近で2024年に大規模修繕工事実施済みです!
設備・備考等
・オートロック
・宅配ボックス
・エレベーター
・インターネット対応:つなぐネットコミュニケーションズ
・駐車場:月額 31,000円 ~ 40,000円(空き要確認)
・駐輪場:月額 300円 ~ 400円(空き要確認)
修繕履歴
・2022年 3月 各戸ガラス交換工事
・2021年 6月 増圧給水ポンプ分解整備工事(メカニカルシール他及び基板交換)
・2020年 8月 排水ポンプ交換工事(4箇所計8台:雨水貯留槽・機械駐下・消火ポンプ室・身障者用駐車場下)
・2016年 8月 屋上防水工事
メモ
・ペット飼育:可(細則あり・1住戸2匹まで)
・新耐震基準適合物件
・フラット35利用可能
・大規模修繕工事実施済み(2024年8月施工)
・修繕積立金額:46,180,293円(2025年10月時点)
※ペット(成⻑時の体⾼が50㌢以内でかつ体重が10㌕以内)
(学区)
・幡代小学校
・代々木中学校
販売中の部屋情報
- 価格改定 15,990 万円
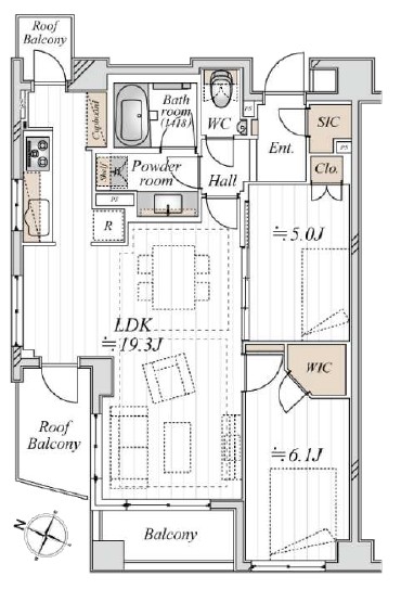
- 4階 | 2LDK + W + SIC | 66.45㎡ | 可
スタッフコメント
・新規内装フルリノベーション済(2026年2月中旬)
・専有面積66.45㎡、2LDK
・シューズインクローゼット&ウォークインクローゼット付き
・4階最上階、角住戸
物件概要
| 種類 | 中古マンション |
|---|---|
| 物件名 | プラネスーペリア代々木参宮橋 |
| 所在地 | 東京都渋谷区代々木4-51-7
GoogleMap |
| 交通 | 小田急線「参宮橋」駅徒歩4分 京王新線「初台」駅徒歩9分 千代田線「代々木公園」駅徒歩14分 |
| 販売価格 | 15,990万円 |
| 間取り | 2LDK + W + SIC |
| 専有面積 | 66.45㎡ |
| 管理費 | 17,430円 |
| 修繕積立金 | 24,280円 |
| その他費用 | 2,405円 |
| 現況 | 空室 |
| 構造 | RC造 4階建て |
| 所在階 | 4階 |
| 築年月 | 2010年3月 |
| 総戸数 | 28戸 |
| 施工会社 | 鉄建建設 |
| 管理会社 | 東急コミュニティー |
| 管理形態 | 全部委託 日勤管理 |
| 駐車場 | 月額 31,000円 ~ 40,000円(空き要確認) |
| 駐輪場 | 月額 300円 ~ 400円(空き要確認) |
| 取引態様 | 仲介 |
| ペット飼育 | 可(細則あり・1住戸2匹まで) |
| POINT | 管理状態良好 / 駅近 / 2沿線以上利用可 / 住環境押し / 公園が近くにあります / 近くにコンビニあります / 近くにスーパーあります / 新耐震基準適合 / 大規模修繕工事済み / フラット35 / ペット可 / オートロック / 宅配ボックス / エレベーター / 低層マンション / 中古マンション / 渋谷区 / 京王線・新線 / 初台 / 小田急線 / 参宮橋 / 幡代小学校 |
・セブンイレブン 代々木参宮橋店 (168 m)
・ファミリーマート 参宮橋駅前店 (259 m)
・ローソン 渋谷初台一丁目店 (369 m)
・マルマンストア 参宮橋店 (79 m)
・まいばすけっと 参宮橋駅前店 (221 m)
・参宮橋公園 (215 m)
・代々木警察署 代々木地域安全センター (483 m)
・参宮橋ちとせ保育園 (97 m)
・みんなのみらいをつくる保育園初台 (368 m)
・聖ヨゼフ保育園 (392 m)
・渋谷区立幡代小学校 (621 m)
・渋谷区立代々木中学校 (772 m)
他の物件を探す
営業時間 10:00~20:00
定休日 水曜日
京王新線「幡ヶ谷」駅北口徒歩2分
東京都渋谷区幡ヶ谷2-6-5 梅村ビル7階



LINEでお問い合わせ