- 価格改定 45,800 万円
- 2LDK | 91.39㎡ | 代々木上原駅 | 可
グランドメゾン渋谷大山町の物件レポート
立地・アクセス
東京メトロ千代田線と小田急線が利用できる『代々木上原』駅徒歩8分!渋谷区大山町の高級住宅街に立地しています!第一種低層住居専用地域に建っているので、周辺には背の高い建物が少ない閑静な住宅地で、静かな落ち着いた住環境を好む人におすすめのエリアです!
物件について
グランドメゾン渋谷大山町は、2026年2月に誕生した新築マンションです!積水ハウスの【グランドメゾン】シリーズで、地上4階建てで総戸数20邸の重厚感のある低層マンションです!しっかりエレベーターも完備しております!管理会社には積水ハウスGMパートナーズが入っており、エントランスにはオートロック付きで不在時に便利な宅配ボックスも完備しています!
設備・備考等
・オートロック
・宅配ボックス
・エレベーター
・インターネット対応
・駐車場(空き要確認)
・駐輪場(空き要確認)
・バイク置場(空き要確認)
メモ
・ペット飼育:可(細則あり)
・新耐震基準適合物件
・フラット35利用可能
(学区)
・西原小学校
・代々木中学校
販売中の部屋情報
- 価格改定 45,800 万円
- 1階 | 2LDK | 91.39㎡ | 可
部屋のPOINT
お風呂広いよ / 8,000万円以上 / 1億円以上 / だいぶ価格下がってます / 価格下がりました! / 収納たっぷり! / 1階 / 築後未入居 / LDK15帖以上 / 70平米以上 / エアコン付 / 食洗機付
スタッフコメント
・2026年2月築
・専有面積91.39㎡の広々2LDK
・LD部分、天高最高2.8m
・
・見学は物件前待ち合わせで!いつでもOK!
・販売スタート価格 | 48,000万円
室内写真
玄関・廊下- フラットの玄関
- シューズボックス
- 1620サイズのバスルーム
- 2ボウルタイプの洗面
- スタイリッシュなタンクレストイレ
- 鏡付き手洗い場あり
- リネン庫
- 食洗機付き
- カップボード付き
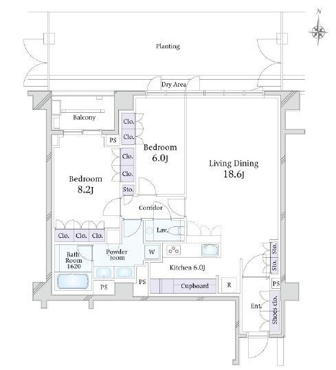
- 広々約18.6帖のリビングダイニング
- 約8.2帖の洋室①
- 洋室①の収納
- 洋室①の収納2
- ビルトインエアコン完備
- 約6帖の洋室②
- 洋室②の収納
- リビング収納
- リビング、ビルトインエアコン2基完備
物件概要
| 種類 | 中古マンション |
|---|---|
| 物件名 | グランドメゾン渋谷大山町 |
| 所在地 | 東京都渋谷区大山町35-19
GoogleMap |
| 交通 | 千代田線他「代々木上原」駅徒歩8分 小田急線「東北沢」駅徒歩6分 |
| 販売価格 | 45,800万円 |
| 間取り | 2LDK |
| 専有面積 | 91.39㎡ |
| 管理費 | 56,100円 |
| 修繕積立金 | 25,600円 |
| 現況 | 空室 |
| 構造 | RC造 4階建て |
| 所在階 | 1階 |
| 築年月 | 2026年2月 |
| 総戸数 | 20戸 |
| 施工会社 | アーキサイトメビウス |
| 管理会社 | 積水ハウスGMパートナーズ |
| 管理形態 | 全部委託 日勤管理 |
| 駐車場 | (空き要確認) |
| 駐輪場 | (空き要確認) |
| バイク置場 | (空き要確認) |
| 取引態様 | 仲介 |
| ペット飼育 | 可(細則あり) |
| POINT | 2沿線以上利用可 / バス便利! / 住環境押し / 公園が近くにあります / 近くにコンビニあります / 近くにスーパーあります / 築浅 / 新耐震基準適合 / フラット35 / ペット可 / オートロック / 宅配ボックス / エレベーター / 内廊下設計 / 低層マンション / 中古マンション / 渋谷区 / 小田急線 / 東北沢 / 千代田線 / 代々木上原 / 西原小学校 / 高級分譲 / グランドメゾンシリーズ |
・ローソン 渋谷大山町店 (140 m)
・ファミリーマート 世田谷北沢四丁目店 (183 m)
・まいばすけっと 北沢4丁目店 (322 m)
・まいばすけっと 東北沢駅東口店 (456 m)
・大山児童遊園地 (222 m)
・代々木警察署 代々木上原駅前交番 (425 m)
・さくらさくみらい上原 (349 m)
・若竹保育園 (437 m)
・東北沢ききょう保育園 (444 m)
・グローバルキッズ代々木上原園 (483 m)
・渋谷区立西原小学校 (658 m)
他の物件を探す
代々木マンション倶楽部
営業時間 10:00~20:00
定休日 水曜日
京王新線「幡ヶ谷」駅北口徒歩2分
東京都渋谷区幡ヶ谷2-6-5 梅村ビル7階
営業時間 10:00~20:00
定休日 水曜日
京王新線「幡ヶ谷」駅北口徒歩2分
東京都渋谷区幡ヶ谷2-6-5 梅村ビル7階






LINEでお問い合わせ-300x455.jpg)
-300x455.jpg)
-300x455.jpg)
-400x606.jpg)
-400x606.jpg)
-400x606.jpg)
-400x606.jpg)
-400x606.jpg)
-400x606.jpg)
-400x267.jpg)
-400x267.jpg)
-400x267.jpg)
-400x267.jpg)
-400x267.jpg)
-400x267.jpg)
-400x267.jpg)
-400x267.jpg)
-400x267.jpg)
-400x267.jpg)
-400x267.jpg)
-400x267.jpg)
-400x267.jpg)
-400x267.jpg)
.jpg)
-300x200.jpg)
-300x200.jpg)
-300x200.jpg)