- 13,980 万円 PriceDown ↓
- 2SLDK | 114.32㎡ | 参宮橋駅 | 可
代々木ハイライズの物件レポート
立地・アクセス
京王新線『初台』駅徒歩5分の駅近です!小田急線の『参宮橋』駅も徒歩8分で利用できるので、目的地によって使い分けられる好立地!
渋谷区代々木4丁目のヴィンテージマンションが建ち並ぶ閑静な住宅街に立地しています。このエリアは【新宿駅】徒歩圏内でありながら、ガヤガヤ感もないので静かな落ち着いた雰囲気が好きな人にオススメですよ!
物件について
代々木ハイライズは、1974年築(昭和49年)地上6階建て総戸数24邸のヴィンテージマンションです!築年は少し古いですが、オートロック付きでセキュリティー面でも安心です!
この築年では珍しく、ペット飼育も可能なので、ペット可必須の人はご注目です!
設備・備考等
・オートロック
・エレベーター
・駐車場:月額 18,000円 ~ 30,000円(空き要確認)
・駐輪場:年額 2,400円(空き要確認)
・バイク置場:月額 5,000円(空き要確認)
修繕履歴
・2007年 給排水管更新工事
メモ
・ペット飼育:可(細則あり)
・大規模修繕工事実施済み(2013年施工)
(学区)
・代々木山谷小学校
・代々木中学校
販売中の部屋情報
- 13,980万円 PriceDown ↓
- 5階 | 2SLDK | 114.32㎡ | 可
スタッフコメント
・新規内装フルリノベーション(2025年9月)
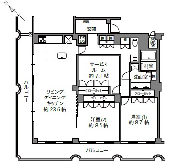
・専有面積114.32㎡、広々2SLDK
・6階部分、L字バルコニー付き可角住戸
室内写真
玄関・廊下物件概要
| 種類 | 中古マンション |
|---|---|
| 物件名 | 代々木ハイライズ |
| 所在地 | 東京都渋谷区代々木4-26-10
GoogleMap |
| 交通 | 京王新線「初台」駅徒歩5分 小田急線「参宮橋」駅徒歩8分 山手線他「新宿」駅徒歩12分 |
| 販売価格 | 13,980万円 |
| 間取り | 2SLDK |
| 専有面積 | 114.32㎡ |
| 管理費 | 22,100円 |
| 修繕積立金 | 29,010円 |
| 現況 | 空室 |
| 構造 | RC造 6階建て |
| 所在階 | 5階 |
| 築年月 | 1974年4月 |
| 総戸数 | 24戸 |
| 施工会社 | 大林組 |
| 管理会社 | 日鉄コミュニティ |
| 管理形態 | 全部委託 日勤管理 |
| 駐車場 | 月額 18,000円 ~ 30,000円(空き要確認) |
| 駐輪場 | 年額 2,400円(空き要確認) |
| バイク置場 | 月額 5,000円(空き要確認) |
| 取引態様 | 仲介 |
| ペット飼育 | 可(細則あり) |
| POINT | 管理状態良好 / 2沿線以上利用可 / バス便利! / 住環境押し / 公園が近くにあります / 近くにコンビニあります / 近くにスーパーあります / 大規模修繕工事済み / ペット可 / オートロック / エレベーター / ヴィンテージマンション / 中古マンション / 渋谷区 / 京王線・新線 / 初台 / 小田急線 / 参宮橋 |
・ファミリーマート 代々木四丁目店 (96 m)
・ファミリーマート 初台交差点前店 (107 m)
・セブンイレブン 西新宿3丁目店 (146 m)
・マルエツ プチ 西新宿三丁目店 (382 m)
・マルマンストア 参宮橋店 (474 m)
・まいばすけっと 参宮橋駅前店 (489 m)
・代々木第四公園 (218 m)
・代々木警察署 代々木地域安全センター (284 m)
・パレット保育園・初台 (94 m)
・太陽の子代々木西参道保育園 (138 m)
・みんなのみらいをつくる保育園初台 (170 m)
・渋谷区立山谷かきのみ園 (273 m)
・渋谷区立代々木山谷小学校 (436 m)
他の物件を探す
営業時間 10:00~20:00
定休日 水曜日
京王新線「幡ヶ谷」駅北口徒歩2分
東京都渋谷区幡ヶ谷2-6-5 梅村ビル7階








LINEでお問い合わせ




















