- 価格改定 7,999 万円
- 2LDK +SIC | 54.95㎡ | 代々木八幡駅 | 不可
代々木ロイヤルマンションの物件レポート
立地・アクセス
小田急線『代々木八幡』駅、東京メトロ千代田線『代々木公園』駅、ともに徒歩6分の好立地!渋谷区代々木5丁目の山手通り沿いです。すぐ近くの初台坂下の信号を渡った先にローソンやOKストアがあるので、普段のお買物に不便はなさそうですね!代々木八幡駅(代々木公園駅)周辺にもスーパーや飲食店が多いですよ!
物件について
代々木ロイヤルマンションは、1978年築(昭和53年)の旧耐震の物件ですが、エントランスにはオートロックと宅配ボックスが完備されています!地上8階建てで総戸数は51邸。大和ライフネクストが管理に入っており、直近で2024年に大規模修繕工事を実施していてマンションのコンディションも良さそうです。
設備・備考等
・オートロック
・宅配ボックス
・エレベーター
・インターネット対応:NTT Bフレッツ、イッツコム、NURO光
・駐車場:月額 3,500円(空き要確認)
・駐輪場:月額 800円(空き要確認)
・バイク置場:月額 3,000円(空き要確認)
修繕履歴
・2018年 排水管改修工事
・2012年 給水管改修工事
・2010年 エレベーター改修工事
・2010年 宅配ボックス新設
メモ
・ペット飼育:不可
・大規模修繕工事実施済み(2024年11月施工)
(学区)
・富谷小学校
・上原中学校
販売中の部屋情報
- 価格改定 7,999 万円
- 4階 | 2LDK + SIC | 54.95㎡ | 不可
スタッフコメント
・新規内装フルリノベーション(2026年1月末)
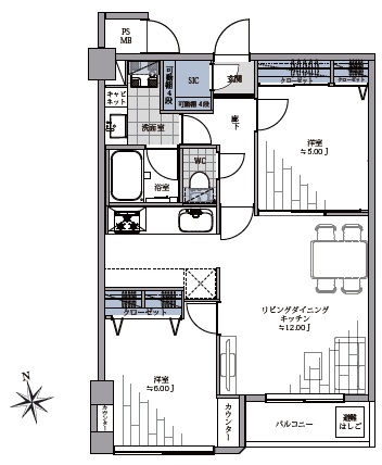
・専有面積54.95㎡、2LDK
・4階部分、南向き
室内写真
玄関・廊下- 優しい色合いの清潔感ある玄関
- 大容量シューズインクローゼット!
- 1216サイズ
- W900mm三面鏡洗面化粧台
- 可動棚
- 温水洗浄機能付き
- キッチンW2560mm
- 食洗機付き
- 約12帖のLDK
- 約5帖洋室①!廊下側とリビング側からも出入りできます!
- 洋室①収納
- 約6帖洋室②
- 洋室②収納
物件概要
| 種類 | 中古マンション |
|---|---|
| 物件名 | 代々木ロイヤルマンション |
| 所在地 | 東京都渋谷区代々木5-12-10
GoogleMap |
| 交通 | 小田急線「代々木八幡」駅徒歩6分 千代田線「代々木公園」駅徒歩6分 小田急線他「代々木上原」駅徒歩10分 |
| 販売価格 | 7,999万円 |
| 間取り | 2LDK + SIC |
| 専有面積 | 54.95㎡ |
| 管理費 | 9,900円 |
| 修繕積立金 | 20,661円 |
| 現況 | 空室 |
| 構造 | SRC造 8階建て |
| 所在階 | 4階 |
| 築年月 | 1978年3月 |
| 総戸数 | 51戸 |
| 施工会社 | 日産建設 |
| 管理会社 | 大和ライフネクスト |
| 管理形態 | 全部委託 |
| 駐車場 | 月額 3,500円(空き要確認) |
| 駐輪場 | 月額 800円(空き要確認) |
| バイク置場 | 月額 3,000円(空き要確認) |
| 取引態様 | 仲介 |
| ペット飼育 | 不可 |
| POINT | 管理状態良好 / 3駅以上利用可 / 2沿線以上利用可 / バス便利! / 公園が近くにあります / 近くにコンビニあります / 近くにスーパーあります / 大通りが近い / 旧耐震 / 大規模修繕工事済み / ペット不可 / オートロック / 宅配ボックス / エレベーター / 中古マンション / 渋谷区 / 小田急線 / 代々木八幡 / 千代田線 / 代々木公園 / 代々木上原 / 富谷小学校 |
・ローソン 元代々木町店 (154 m)
・セブンイレブン 元代々木町店 (350 m)
・ナチュラルローソン 代々木八幡店 (410 m)
・OK(オーケー)初台店 (244 m)
・まいばすけっと 代々木八幡駅西店 (338 m)
・マルマンストア 代々木八幡店 (410 m)
・はるのおがわプレーパーク (260 m)
・代々木警察署 初台二丁目交番 (183 m)
・代々木至誠こども園 (107 m)
・元代々木保育園 (151 m)
・シオン幼稚園 (213 m)
・聖ヨゼフ保育園 (227 m)
・代々木モンテッソーリ子供の家 (273 m)
・なでしこ保育園 (310 m)
・グローバルキッズ代々木八幡園 (320 m)
・聖ヨゼフ保育園西原 (331 m)
・渋谷区立富谷小学校 (399 m)
他の物件を探す
営業時間 10:00~20:00
定休日 水曜日
京王新線「幡ヶ谷」駅北口徒歩2分
東京都渋谷区幡ヶ谷2-6-5 梅村ビル7階






LINEでお問い合わせ-400x606.jpg)
-400x606.jpg)
-400x606.jpg)
-400x606.jpg)
-400x606.jpg)
-400x606.jpg)
-400x267.jpg)
-400x267.jpg)
-400x267.jpg)
-400x267.jpg)
-400x267.jpg)
-400x267.jpg)
-400x267.jpg)
-400x267.jpg)
-400x267.jpg)
-400x267.jpg)
.jpg)