- 17,990 万円 PriceDown ↓
- 3LDK +W | 74.01㎡ | 神泉駅 | 可
クレッセント渋谷神泉の物件レポート
立地・アクセス
京王井の頭線『神泉』駅徒歩5分の駅近です!渋谷区神泉町の旧山手通り沿いです!
目印はダイハツ!大規模再開発が話題の【渋谷駅】も徒歩圏内!
それでいてガヤガヤしていないエリアなので、ガヤガヤした雰囲気は苦手だけど、都心の近くが良い!という方にはぜひ!
物件について
1999年築(平成11年)、地上13階建て総戸数69邸の新耐震基準適合マンション!
管理会社には東急コミュニティーが入っており、2024年7月時点で1億円以上積立金がたまっているので管理状況も悪くなさそうですね。
前回の大規模修繕工事は、2012年に実施しております!
設備・備考等
・オートロック
・宅配ボックス
・エレベーター
・インターネット対応:NTT、KDDI、NURO光
・駐車場:月額 32,000円 ~ 37,000円(空き要確認)
・駐輪場:月額 300円 ~ 1,000円(空き要確認)
・バイク置場:月額 1,500円(空き要確認)
修繕履歴
・2019年 9月 鉄部塗装工事
・2019年 4月 屋上防水保護塗装工事
・2018年 3月 インターホン設備更新工事
・2012年 4月 共用照明器具LED化工事
メモ
・ペット飼育:可(細則あり・1住戸2匹まで)
・新耐震基準適合物件
・フラット35利用可能
・大規模修繕工事実施済み(2012年3月施工)
・修繕積立金額:108,513,131円(2024年7月時点)
(学区)
・神南小学校
・松濤中学校
販売中の部屋情報
- 17,990万円 PriceDown ↓
- 8階 | 3LDK + W | 74.01㎡ | 可
スタッフコメント
・新規内装フルリノベーション(2026年1月30日)
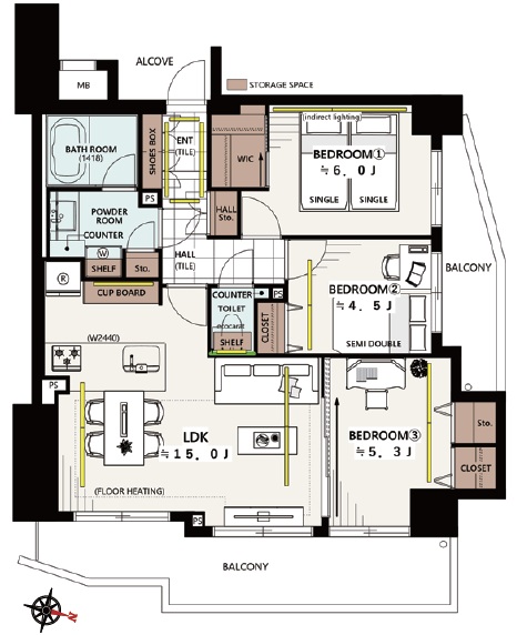
・専有面積74.01㎡、3LDK
・8階部分、二面バルコニー付き角住戸
物件概要
| 種類 | 中古マンション |
|---|---|
| 物件名 | クレッセント渋谷神泉 |
| 所在地 | クレッセント渋谷神泉
GoogleMap |
| 交通 | 井の頭線「神泉」駅徒歩5分 半蔵門線他「渋谷」駅徒歩10分 井の頭線「駒場東大前」駅徒歩11分 |
| 販売価格 | 17,990万円 |
| 間取り | 3LDK + W |
| 専有面積 | 74.01㎡ |
| 管理費 | 12,300円 |
| 修繕積立金 | 24,790円 |
| 現況 | 空室 |
| 構造 | SRC造 13階建て |
| 所在階 | 8階 |
| 築年月 | 1999年7月 |
| 総戸数 | 60戸 |
| 施工会社 | 日産建設 |
| 管理会社 | 東急コミュニティー |
| 管理形態 | 全部委託 日勤管理 |
| 駐車場 | 月額 32,000円 ~ 37,000円(空き要確認) |
| 駐輪場 | 月額 300円 ~ 1,000円(空き要確認) |
| バイク置場 | 月額 1,500円(空き要確認) |
| 取引態様 | 仲介 |
| ペット飼育 | 可(細則あり・1住戸2匹まで) |
| POINT | 管理状態良好 / 修繕積立金たまってます / 駅近 / 3駅以上利用可 / 2沿線以上利用可 / バス便利! / 公園が近くにあります / 近くにコンビニあります / 近くにスーパーあります / 大通りが近い / 新耐震基準適合 / 大規模修繕工事済み / フラット35 / ペット可 / オートロック / 宅配ボックス / エレベーター / 中古マンション / 渋谷区 / 井の頭線 / 神泉 / 山手線 / 渋谷 |
・デイリーヤマザキ 神泉店 (174 m)
・ナチュラルローソン 渋谷神泉町店 (176 m)
・ローソン 神泉駅前店 (187 m)
・ファミリーマート 道玄坂上店 (264 m)
・マルエツ プチ 渋谷神泉店 (189 m)
・まいばすけっと 神泉駅前店 (223 m)
・神泉児童遊園地 (141 m)
・渋谷警察署 道玄坂上交番 (365 m)
他の物件を探す
営業時間 10:00~20:00
定休日 水曜日
京王新線「幡ヶ谷」駅北口徒歩2分
東京都渋谷区幡ヶ谷2-6-5 梅村ビル7階






LINEでお問い合わせ